負壓病房建設改造方案
負壓病房設計建設改造方案
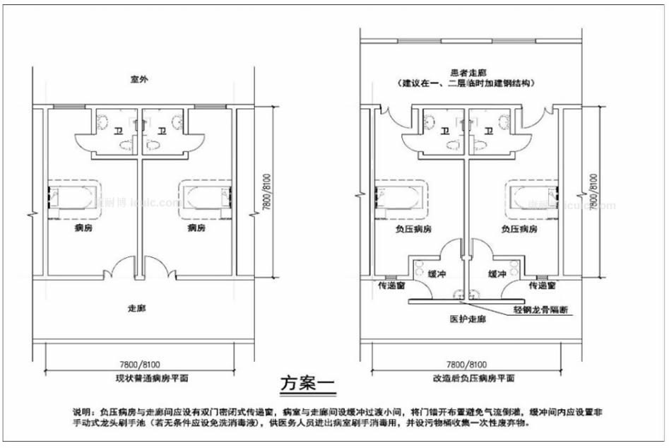
一、建筑方案
每個負壓病區可由多間負壓病房組成,應當設置患者與醫務人員各自獨立的垂直交通和走廊。平面布置應當劃分清潔區、半污染區與污染區。清潔區應當設置獨立的醫護人員辦公區,在清潔區與半污染區之前設置醫護人員獨立穿過式衛生通過室,包括換鞋、一次更衣、淋浴、二次更衣;有條件時醫護人員二次更衣可設在半污染區與污染區之間。負壓病房每間設置獨立的衛生間,在醫護走廊與病房之間設置緩沖前室,設置非手動或自動感應龍頭洗手池,墻上設置雙門密閉式傳遞窗。
二、采暖通風與空氣調節清潔區、半污染區與污染區的機械送、排風系統應當按區域獨立設置。建筑氣流組織應形成從清潔區至半污染區至污染區有序的壓力梯度。房間氣流組織應當防止送、排風短路,送風口位置應當使清潔空氣首先流過房間中醫務人員可能的工作區域,然后流過傳染源進入排風口。送風口應當設置在房間上部。病房、診室等污染區的排風口應當設置在房間下部,房間排風口底部距地面不應小于 100mm。每間負壓隔離病房設置一套 1500 立方米/小時風量全新風系統。送風應經過粗效、中效、亞高效過濾器三級處理,且設兩套排風系統,其中一套帶高效過濾器。排風應當經過高效過濾器過濾處理后排放。排風的高效空氣過濾器應當安裝在房間排風口處。每間負壓隔離病房的送、排風管上應當設置密閉閥。設傳感系統控制變頻風機,保證負壓病房與緩沖、走廊保持 5Pa負壓。
三、給水和排水
(一)給水
1.醫務人員使用的洗手盆、洗滌池、化驗盆等采用非接觸式的感應水龍頭。
2.公共衛生間的洗手盆采用感應自動水龍頭,小便斗采用自動沖洗閥,坐便器采用腳踏式自閉沖洗閥或感應沖洗閥。
3.給水、熱水的配水干管、支管設置的檢修閥門,宜設在工作人員的清潔區和半污染區內,嚴禁設置在污染區內。
(二)排水
1.病房的污廢水排水應當與非病區的污廢水排水分流排出。
2.病房的污廢水排水設化糞池后可與非病區的廢水排水合流排出,排至醫院污水處理站,按傳染病醫院排水消毒處理。
3.大便器、小便斗、洗手盆、洗滌池、化驗盆等衛生設備皆應當設水封。
4.診室、護士室、治療室、檢查室、與病房隔離的洗手間等,不宜設地漏;病房衛生間可設地漏,需定期檢查,給地漏水封補水。
5.衛生設備、地漏水封不得小于 50mm。
6.病房區的污廢水排水通氣管不得連接非病區的通氣排水管。上屋面的通氣管口處周邊應當有良好的通風條件。嚴重傳染病區應當在通氣管口處配設氣體消毒設施。
7.室外污廢水排水檢查井應當采用密閉井蓋;排水管網配設通氣立管,通氣口高出地面 2.0m。通氣立管的設置位置不影響地面使用。
四、電氣
(一)負壓病房為一級特別重要負荷。由現狀變電所(配電室,電氣豎井)不同的低壓母線引兩路電源為病房供電,其中一路引自應急段,在病房合適位置設一雙電源配電箱為病房負荷供電;由本樓變電所(配電室,電氣豎井)不同的低壓母線引兩路電源為病房通風系統供電,其中一路引自應急段,在病房通風系統合適位置設一雙電源配電箱為病房通風系統供電。
(二)根據《建筑照明設計標準》(GB50034),主要場所照度標準詳見下表。
表 1 建筑照明標準值一覽表
| 主要場所 | 照度標準(lx) | 對應功率密度值(≤W/㎡) |
| 病房、急診觀察室 | 100 | 5 |
病房、緩沖間采應當滿足醫療環境的視覺要求。病房及醫護走廊應當設置紫外線消毒燈插座。
(三)除手術室、重癥監護室、急診搶救室的插座回路外, 其他所有插座配線回路上裝設漏電開關保護。衛生間、浴室等處作局部等電位聯接。
五、弱電智能化
(一)病房內原有的弱電系統(數據端口、電視端口、醫護對講、火災探測器等)維持不變。
(二)病房新增建筑設備監控系統,對通風系統進行自動控制,并應監視污染區及半污染區的壓差。
(三)病房新增門禁控制系統,對負壓病房的醫、患通道,污染與潔凈區的過渡進行控制。
(四)病房新增視頻監護系統,采用語音及視頻雙向通訊功能。
負壓病房建設改造方案(圖)

